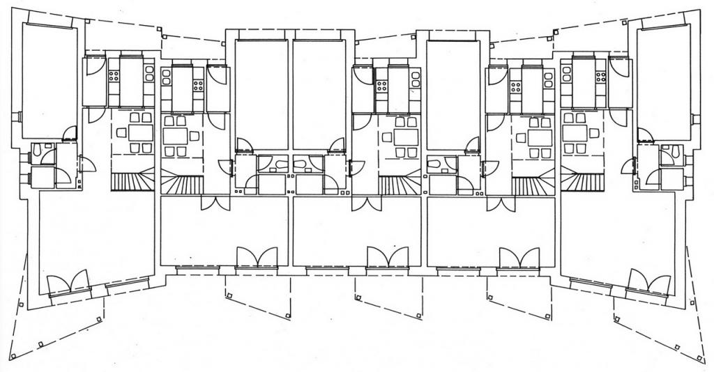
Szerencs - Orvoslakások
Tervező: Salamin Ferenc

Tervező: Salamin Ferenc
Épület típusa: lakóépület
Épület neve: Orvoslakások / Apartments for physicians
Helyszín/: Szerencs
Tervezés/építés éve - year of design/completed in: 1987/1991
Ismertetés: Az egészségügyi központ területén a város szolgálati lakásokat épített orvosok részére. A két darab ötlakásos sorház jellegű épületből, melyek egymás felé fordulva egy védett kertet fogtak körül, csak az egyik épület fel. A középen három tetőteres kisebb lakást és a két végén egy-egy emeletes nagyobb lakást magába foglaló épület Tokaj Hegyalja régi építészeti karakterét kívánja újrafogalmazni, és folytatni.












