Budapest III.ker. - családi ház
Tervező: Ertsey Attila

Gárdos-ház
Megbízó: Gárdos Péter és Gálosi Anita
Hely: Óbuda, Rómaipart
Építész: Ertsey Attila, KÖR Építész Stúdió
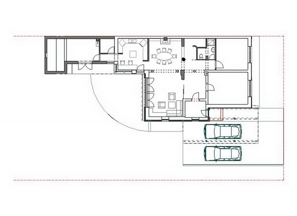
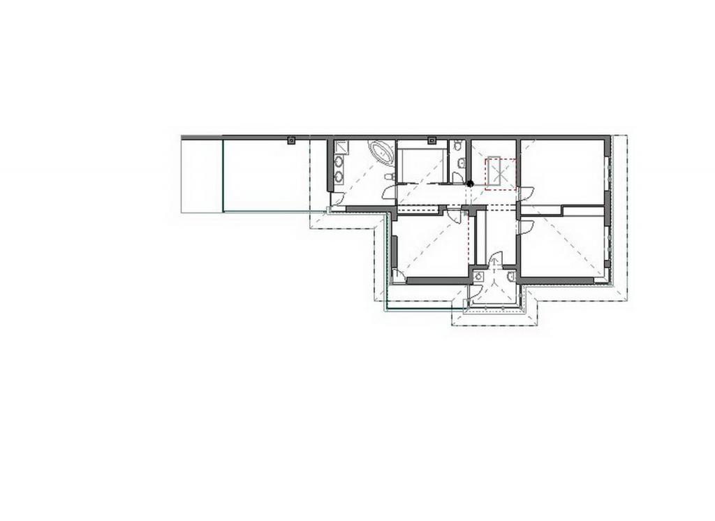
Az épület egy meglévő, jellegtelen, sátortetős ikerház átépítése.
Az építtető szándéka az volt, hogy az új épület idézze meg F. L. Wright építészetét.
A meglévő épület adottságaihoz Wright korai épületeinek eszköztárát választotta a tervező, utalva a Préri-házak dinamizmusára is. A tető részletmegoldása újszerű: a párkány alsó síkja vízszintesen, kiváltó nélkül lebeg az ablaksáv felett ? ezt a párkány feletti tetőszerkezetbe rejtett kiváltók tették lehetővé. A masszív, de könnyed tetőn belül hatékony átszellőzés és a kinyúló párkányok révén a ház nyáron hűtés nélkül is jó klímát biztosít.
Összes alapterülete 250 m2.










